








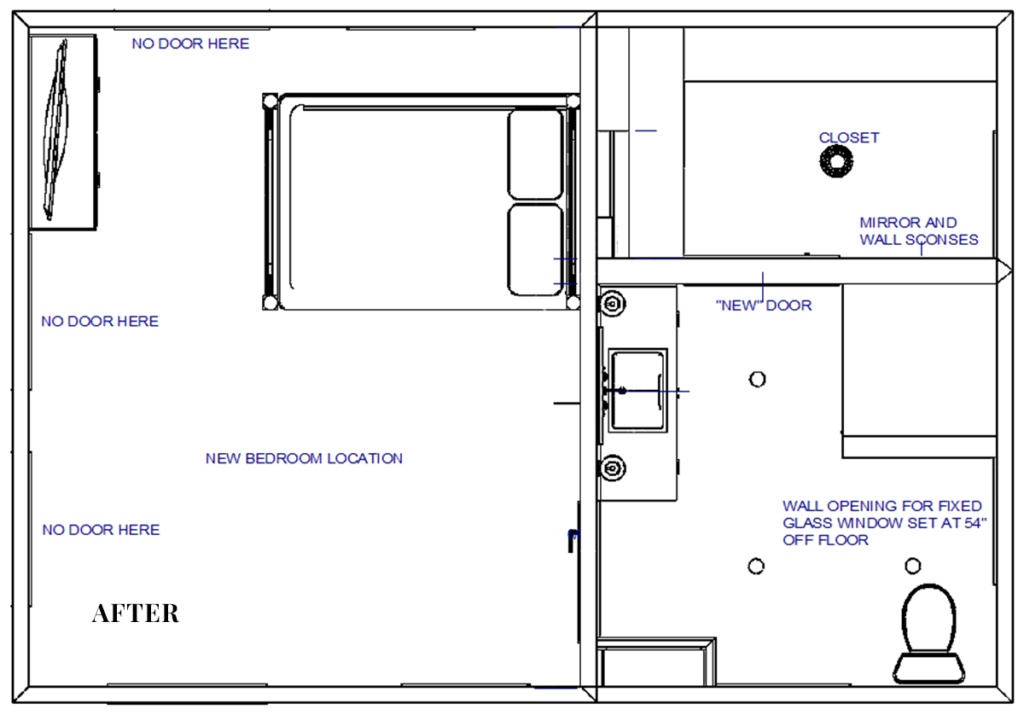
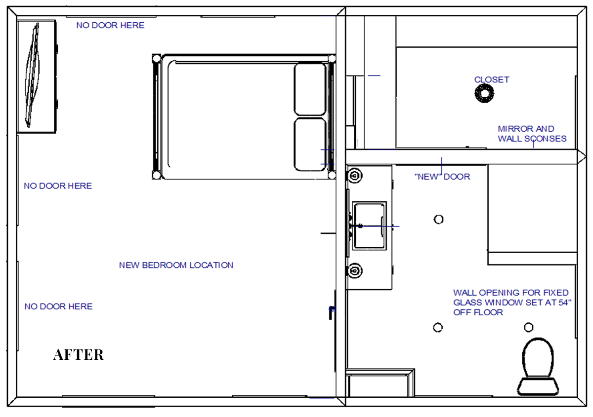
The Brief
Create a bathroom and closet space to accommodate first floor living in this late 1800’s Victorian gem.
The Solution
The existing quaint bathroom became a sizable walk-in closet and we utilized an existing home office to create a bright and open bath that appeared to have existed in the home for decades.
All openings remained intact including windows that reach the floor. We added interior tempered glass panels to bring these beauties to code without losing light or character to the home.
While there we updated the home’s storm doors at the front and back of the home for added security and comfort.




